Menu
Architectural Sculpture Meets Panoramic View Luxury.
$3,830,000
1136 Keith Avenue,
Berkeley
Presented by
Scott Leverette
Scott Leverette
FOLD HOUSE
1136 Keith Ave, Berkeley, CA 94708
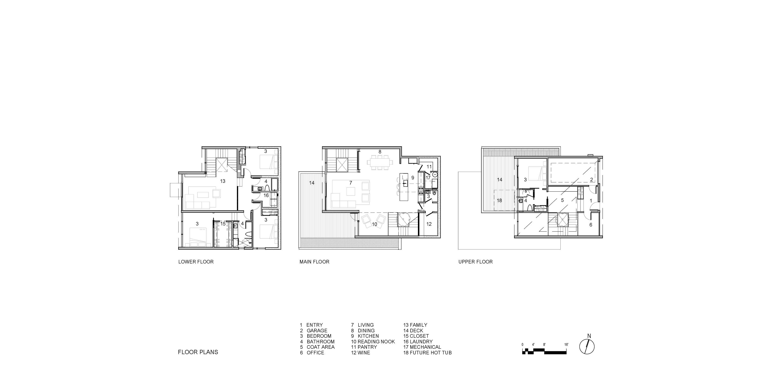
Fold House, the latest creation from the award winning women architect-duo, Artifact Collaborative. A new construction home dramatically situated in the Berkeley Hills. Every west-facing window & door frames an unparalleled 180-degree panorama of San Francisco & the Golden Gate Bridge, offering a daily spectacle you won't find anywhere else. The home's name is derived from its central design motif: the dynamic articulation of planes that create interlocking volumes. This concept is expressed internally by two-story floating staircases that create vertical sculptures, while the unique creased roofline peels upward to capture light through a triangulated clerestory window, bathing the interiors with natural light. This is truly a home designed to both inspire & endure.
Beyond its dramatic aesthetics, the Fold House offers an uncompromising modern lifestyle defined by sustainability and resilience. This all-electric home is engineered for the future, featuring a solar PV system with battery, high-efficiency heat pumps for year-round comfort, and an EV charger. Built from the ground up to the latest standards, it features seismic-resistant foundations (pier and grade beam/mat slab) and fire-hardened construction with durable standing seam metal and plaster and a fire sprinkler system giving you unparalleled peace of mind.
The indoor and outdoor spaces are perfectly integrated for both grand entertaining and quiet relaxation. Imagine hosting on the spacious roof decks, enjoying the sunset over the Bay, or relaxing beside the built-in indoor garden that brings nature right into the main living area. A 4-bedroom 3.5 bath home, (two of which are full bedroom suites), w/ separate living and family rooms & an office. Nestled on a quiet street above Codornices Park & a short distance from North Berkeley’s Gourmet Gulch, the Fold House is more than an address—it’s an opportunity to own an architecturally significant, high-performance retreat with one of the most magnificent views in the Bay Area. Come experience the magic & envision your future in this masterpiece.
3,136 sq. ft.
5936 sq. ft. lot
4 bedrooms+ (an office)
3.5 bathrooms
Attached 1 car garage (205 sq. ft)
One additional off-street parking spot
Owned Solar w/ Enphase 5P 5kwh Battery
Smart home- prewired for a Mesh System
Beyond its dramatic aesthetics, the Fold House offers an uncompromising modern lifestyle defined by sustainability and resilience. This all-electric home is engineered for the future, featuring a solar PV system with battery, high-efficiency heat pumps for year-round comfort, and an EV charger. Built from the ground up to the latest standards, it features seismic-resistant foundations (pier and grade beam/mat slab) and fire-hardened construction with durable standing seam metal and plaster and a fire sprinkler system giving you unparalleled peace of mind.
The indoor and outdoor spaces are perfectly integrated for both grand entertaining and quiet relaxation. Imagine hosting on the spacious roof decks, enjoying the sunset over the Bay, or relaxing beside the built-in indoor garden that brings nature right into the main living area. A 4-bedroom 3.5 bath home, (two of which are full bedroom suites), w/ separate living and family rooms & an office. Nestled on a quiet street above Codornices Park & a short distance from North Berkeley’s Gourmet Gulch, the Fold House is more than an address—it’s an opportunity to own an architecturally significant, high-performance retreat with one of the most magnificent views in the Bay Area. Come experience the magic & envision your future in this masterpiece.
3,136 sq. ft.
5936 sq. ft. lot
4 bedrooms+ (an office)
3.5 bathrooms
Attached 1 car garage (205 sq. ft)
One additional off-street parking spot
Owned Solar w/ Enphase 5P 5kwh Battery
Smart home- prewired for a Mesh System
All Property Photos
Neighborhood
Perched above the city and offering the best panoramic views in the entire Bay Area, North Berkeley Hills is an incredibly peaceful residential neighborhood, yet not far from the hustle and bustle of the city’s more urban areas. Homes in the neighborhood are built in a variety of styles and feature spacious patio decks, manicured lawns and lushly landscaped gardens.
Depending on where you live, North Berkeley Hills residents can enjoy views of the San Francisco and Oakland skylines, the Golden Gate Bridge, Alcatraz Island, and Mount Tamalpais. For even more great views plus a variety of great outdoor activities, residents can take a short trip to nearby Tilden Regional Park. Park amenities vary between free and paid activities. Free activities available at TIlden Park include a beautiful botanical garden, the Little Farm, and nearly 40 miles of scenic hiking trails. For a small fee, the public can also swim at Lake Anza, take a spin on the Merry-Go-Round, or enjoy a round of golf at Tilden Park Golf Course.
Some residents in the southern part of North Berkeley Hills are within walking distance of the thriving retail district on Solano Avenue. Featuring a wide variety of stores, shops, and plenty of great restaurants, including:
Safeway Community Markets: Located at the southwest corner of Solano and Fresno Avenues, this is a great place to check off everything on your grocery list.
Noor & Sons Rug Gallery: Find handcrafted Oriental Rugs for your home, as well as rug cleaning and repair services.
Peet’s Coffee: It all started in Berkeley, and this location is ideal for your morning cup of coffee before you begin your commute.
Additionally, foodies who love a variety of cuisines are just a short walk or drive away from the infamous Gourmet Ghetto neighborhood.
Despite its elevated location, North Berkeley Hills is extremely transit-friendly. The Alameda-Contra Costa Transit District bus lines that serve the neighborhood drop residents at the Downtown Berkeley BART station for a quick commute to downtown San Francisco. Berkeley Hills residents who live near the western section of the neighborhood are less than one mile away from the heart of UC Berkeley, making it a great area for faculty and administrators to live.
Depending on where you live, North Berkeley Hills residents can enjoy views of the San Francisco and Oakland skylines, the Golden Gate Bridge, Alcatraz Island, and Mount Tamalpais. For even more great views plus a variety of great outdoor activities, residents can take a short trip to nearby Tilden Regional Park. Park amenities vary between free and paid activities. Free activities available at TIlden Park include a beautiful botanical garden, the Little Farm, and nearly 40 miles of scenic hiking trails. For a small fee, the public can also swim at Lake Anza, take a spin on the Merry-Go-Round, or enjoy a round of golf at Tilden Park Golf Course.
Some residents in the southern part of North Berkeley Hills are within walking distance of the thriving retail district on Solano Avenue. Featuring a wide variety of stores, shops, and plenty of great restaurants, including:
Safeway Community Markets: Located at the southwest corner of Solano and Fresno Avenues, this is a great place to check off everything on your grocery list.
Noor & Sons Rug Gallery: Find handcrafted Oriental Rugs for your home, as well as rug cleaning and repair services.
Peet’s Coffee: It all started in Berkeley, and this location is ideal for your morning cup of coffee before you begin your commute.
Additionally, foodies who love a variety of cuisines are just a short walk or drive away from the infamous Gourmet Ghetto neighborhood.
Despite its elevated location, North Berkeley Hills is extremely transit-friendly. The Alameda-Contra Costa Transit District bus lines that serve the neighborhood drop residents at the Downtown Berkeley BART station for a quick commute to downtown San Francisco. Berkeley Hills residents who live near the western section of the neighborhood are less than one mile away from the heart of UC Berkeley, making it a great area for faculty and administrators to live.
Property Tour
3D Virtual Tour
Scott Leverette
Golden Gate Sotheby's International Realty
Realtor
- DRE:
- #01371899
- Mobile:
- (510)919-3333
- Office:
- (510)883-7000
[email protected]
Recent Listings
Get In Touch
Thank you!
Your message has been received. We will reply using one of the contact methods provided in your submission.
Sorry, there was a problem
Your message could not be sent. Please refresh the page and try again in a few minutes, or reach out directly using the agent contact information below.
Scott Leverette
Golden Gate Sotheby's International Realty
Realtor
- DRE:
- #01371899
- Mobile:
- (510)919-3333
- Office:
- (510)883-7000
Email Us